L’agence Mavumer vous propose, au sein de la résidence Grand Baie, 80 impasse Richebois, 13016 Marseille, un appartement d’exception en dernier étage développant environ 145 m² Loi Carrez de plain-pied, prolongé par une terrasse spectaculaire d’environ 200 m² offrant une vue panoramique sur la mer et la baie de Marseille.
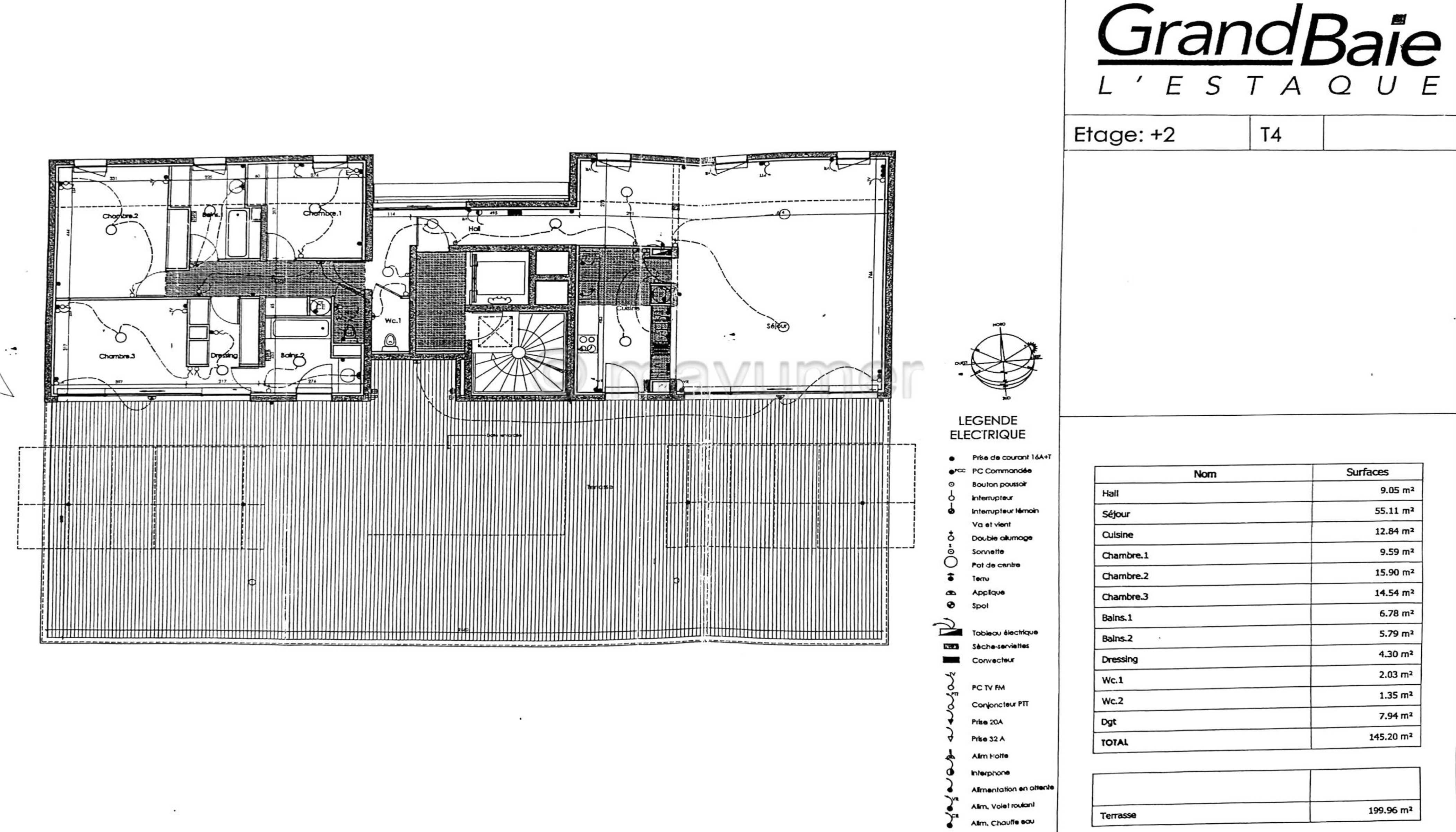
Dès l’entrée, le regard est immédiatement capté par la pièce de vie baignée de lumière, ouverte plein Sud et largement prolongée par l’extérieur. La terrasse devient un véritable prolongement naturel du séjour, créant une continuité dedans/dehors rare et particulièrement recherchée. La cuisine ouverte, élégante et fonctionnelle, s’intègre harmonieusement à cet espace de réception.
L’espace nuit, distinct pour plus d’intimité, se compose de trois chambres. La suite parentale bénéficie de son dressing et de sa salle de bains, avec une ouverture privilégiée sur la mer. Les deux autres chambres, orientées côté collines, profitent d’un environnement calme et verdoyant et se partagent une salle d’eau.
La terrasse, aux dimensions exceptionnelles, permet d’imaginer de multiples espaces de vie : salon extérieur, coin repas, solarium… Un bien pensé pour profiter pleinement du climat méditerranéen et d’un cadre de vie unique.
Résidence de standing construite en 2010, sécurisée, avec piscine et espaces verts soigneusement entretenus.
Deux box fermés en sous-sol ainsi qu’une cave complètent ce bien. Possibilité d’acquérir un troisième box en supplément.
L’appartement bénéficie d’un environnement résidentiel recherché sur les hauteurs de l’Estaque, à proximité du village, des accès autoroutiers et à environ 15 minutes de la gare TGV et de l’aéroport. Accès rapide au secteur Euroméditerranée et aux Terrasses du Port.
Bien soumis aux règles de copropriété. Nombre de lots : 200 dont 54 à usage d’habitation. Charges annuelles : 9 690€/an Taxe foncière : 3450€ Mandat: 790
Pour tout renseignement ou pour organiser une visite, merci de contacter Stéphane au 06.27.04.12.92 ou stephane@mavumer.fr.
Les informations sur les risques auxquels ce bien est exposé sont disponibles sur le site Géorisques : www.georisques.gouv.fr

stephane@mavumer.fr
06 27 04 12 92