L'agence MAVUMER, vous propose cet immeuble comprenant 5 lots sur 3 niveaux à rénover situé dans le coeur historique d'Istres.
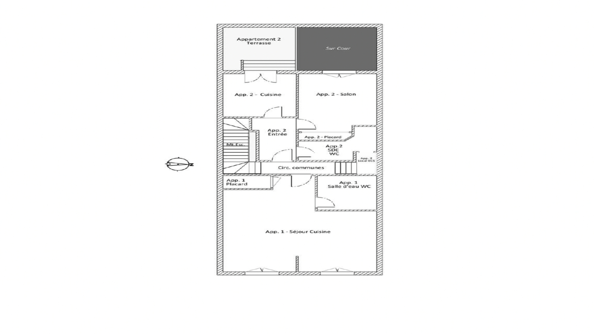
Cet immeuble nécessite une rénovation complète des 4 appartements (libres de toute occupation) situés au 1er et 2ème étages. Seul le local commercial en RDC est en parfait état et est loué. Les 4 appartements ont une superfie comprise entre 26m2 pour le plus petit et 36m2 environ pour le plus grand, le local commercial (hors cour) a une superficie d'environ 45m2.
Cet immeuble se décompose ainsi:
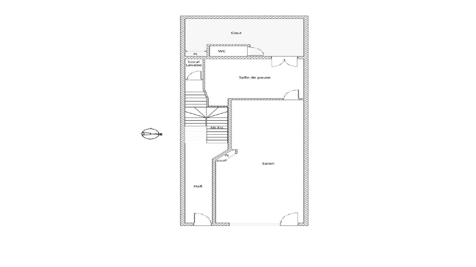
Au rez de chaussée, avec son entrée privative, se trouve un local commercial (lot n5) en excellent état avec locataires en place depuis 20 ans (activité de prestation de service). Ce lot bénéfice également d'une cour intérieure.
L'accès aux 1er et 2ème étages se fait par une entrée indépendante de celle du commerce. Dans les parties communes aux appartements se trouve un local avec point d'eau pour l'entretien des communs.
Au 1er étage : à droite, un studio (lot n1) comprenant une pièce de vie avec cuisine, placard, SDE avec WC, exposition Est. Sur le même palier se trouve sur la gauche, un appartement (lot n2) avec une entrée, une cuisine séparée, une pièce de vie avec placard, une terrasse sans vis à vis accessible depuis la cuisine, une SDE avec WC, exposition Ouest.
Au 2ème étage : à gauche, un appartement de type 2 (lot n3) avec entrée, cuisine ouverte sur le séjour, une pièce faisant office de chambre, une SDE avec WC, placard, exposition Est. Sur ce niveau, à droite, un studio (lot n4) comprenant une pièce à vivre avec balcon, une SDE avec WC, et placard indépendant, exposition Sud/Ouest.
L'immeuble étant dans le centre ancien, il est soumis au permis de louer de la ville d'Istres. Le DPE est classé F et C pour le commerce, les autres lots ne disposant pas de système de chauffage ne sont pas soumis au DPE, la Taxe Foncière est de 2336€/an.
L'ensemble des lots de l'immeuble bénéficient d'une belle luminosité et de très peu de vis à vis. Possibilité de réagencer les espaces et/ou de regrouper plusieurs lots.
Ce bien avec un fort potentiel dans un secteur recherché est une belle opportunité à saisir, son prix étant cohérent avec les travaux à réaliser, c'est un placement idéal pour un projet d'investissement.
Pour tout renseignement ou pour visiter ce bien, merci de contacter Sandra au 06.15.10.42.69 ou par email: sandra@mavumer.fr
Les informations sur les risques auxquels ce bien est exposé sont disponibles sur le site Géorisques : www.georisques.gouv.fr

sandra@mavumer.fr
06 15 10 42 69